Confronta Immobili

Puoi confrontare un massimo di 4 immobili
Confronta Svuota
  • 051 4399031
  • info@agenziacostasaragozza.it
BolognaRE
  • Home
  • Chi siamo
    • La nostra agenzia
    • I nostri agenti
  • Immobili
    • Vendita
    • Affitto
  • Servizi
    • Stime immobiliari
    • Contratti d’affitto
    • Consulenza immobiliare
    • Pubblicità per il tuo immobile
    • Calcola Mutuo
    • Valutazione immobile
    • Link utili
  • Blog
  • Lavora con noi
  • Contatti

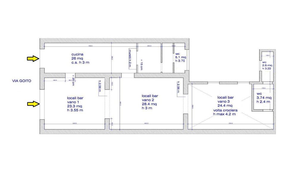
Negozio – Centro storico – Bologna Vendita

Via Goito ad.ze Via Indipendenza Bologna
840.000€
Rif.: CSGL840PUB
  • 140 m²
  • 4 Locali
  • 3 Camere
  • 2 Bagni

Descrizione

Via Goito ad.ze Via Indipendenza: locale commerciale (C/1) già adibito a PUB, in posizione invidiabile a due passi da Via Indipendenza, dotato di una vetrina su strada, composto da tre ampi vani, locale cucina con ingresso a parte, bagno per gli avventori e bagno per il personale, già accessoriato di bancone ed altri arredamenti specifici dell’attività, tutto da pulire accuratamente con risultato assicurato, libero subito. (APE E 277) Il Locale è Classificato SUE-SUAP (confermato il 12 Febbraio 2026) come E8 per Somministrazione Bar-PUB-Ristorazione. Per visionare ulteriori fotografie e/o planimetrie dell’immobile mandateci una richiesta. Vi risponderemo appena possibile. Quanto vale il tuo immobile? Utilizza il valutatore automatico alla pagina https://www.bolognare.it/valutazione-immobile/ e se vuoi una stima più puntuale non esitare a contattarci allo 0514399031 Hai un immobile da vendere o affittare? Se ce lo affidi ti regaliamo l’Attestato di Prestazione Energetica: https://www.bolognare.it/se-ci-affidi-il-tuo-immobile-di-regaliamo-lattestato-di-prestazione-energetica/

Mostra tutto

Dettagli

  • Ascensore: No
  • Anno Costruzione: 1850
  • Piano: Piano Terra
  • Piani immobile: 4
  • Spese Condominiali: 0 € mensili
  • Condizioni: Buono
  • Libero: SUBITO
  • Garage: No
  • Posto Auto: Assente
  • Cantina: Cantina Assente
  • Balcone mq: -
  • Terrazzo mq: -
  • Giardino privato mq: -
  • Giardino condominiale: No
  • Climatizzazione: Autonomo
  • Certificazione Energetica: Classe E
  • Tipo riscaldamento: Autonomo a Metano
  • Impianto riscaldamento: A norma
  • Impianto Elettrico: A norma
  • Arredamento: Arredato

Posizione

Street View

Immobili Simili

Affitto
600€

Negozio – Centro storico – Bologna

Via Mascarella (parte alta) Bologna Dettagli
  • 25 m²
  • 2 Locali
  • 2 Camere
  • 1 Bagni
Vendita
900.000€

Appartamento – Centro storico – Bologna

Via Fondazza tra Strada Maggiore e Via San Petronio Vecchio Bologna Dettagli
  • 173 m²
  • 4 Locali
  • 2 Camere
  • 2 Bagni
In evidenza Vendita
175.000€

Appartamento – Centro storico – Bologna

Via Mascarella (parte nuova) Bologna Dettagli
  • 27 m²
  • 1 Locali
  • 1 Camere
  • 1 Bagni

Rag. Gabriele Lenghi

051 4399031

    Immobili Selezionati

    In evidenza Vendita
    Casa Indipendente – Idice – San Lazzaro di Savena650.000€
    • 1.204 m²
    • 12 Locali
    • 3 Camere
    • 2 Bagni
    In evidenza Vendita
    Attico / Mansarda – Cicogna – San Lazzaro di Savena950.000€
    • 260 m²
    • 6 Locali
    • 4 Camere
    • 3 Bagni
    In evidenza Vendita
    Appartamento – Centro storico – Bologna570.000€
    • 136 m²
    • 4 Locali
    • 3 Camere
    • 2 Bagni
    In evidenza Vendita
    Negozio – Idice – San Lazzaro di Savena250.000€
    • 142 m²
    • 5 Locali
    • 3 Camere
    • 2 Bagni
    In evidenza Vendita
    Appartamento – Centro storico – Bologna175.000€
    • 27 m²
    • 1 Locali
    • 1 Camere
    • 1 Bagni

    Contatti

    BolognaRE Immobiliare
    Via Andrea Costa 28/C – 40134 Bologna

    Telefono: 051 4399031
    Fax: 051 4399031
    E-mail: info@agenziacostasaragozza.it

    Orari

    dal Lunedì al Venerdì
    9.00 - 12.30 e 15.00 - 19.30

    Sabato su appuntamento

    Ultime dal Blog

    • Attestazione Bilaterale di Rispondenza ex D.M. 16/01/2017
    • Se ci affidi il tuo immobile ti regaliamo l’Attestato di Prestazione Energetica
    • I Costi per l’Acquisto della Casa
    • Valuta il tuo Immobile
    • Sospensione dei Termini per Agevolazioni “Prima Casa”
    Agenzia Costa Saragozza di Lenghi Gabriele & C. SAS - P.IVA 02176851208 - Iscr. Ruolo 2476 CCIAA BO - Associato FIAIP